Discover an exceptional opportunity to build your own villa in one of the most pleasant and established residential areas of Jávea. This completely flat plot, facing west and measuring 889 m², is sold with an approved architectural project and an active building permit, allowing you to start construction immediately, without delays or uncertainties.
A Privileged Location
Located in the quiet area of Pinosol, surrounded by beautiful family homes and tree-lined streets, the plot enjoys open views of the Montgó and spectacular afternoon light. The Arenal beach is just a 3-minute drive away, and nearby you will find restaurants, services, and the new international school XIC.
The Approved Project
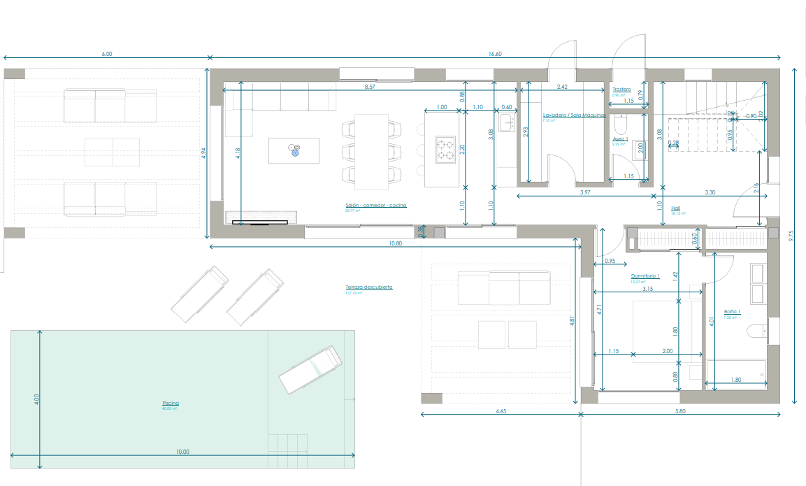
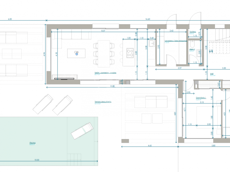
The projected villa, designed with clean and modern lines, offers approximately 177 m² distributed over two floors. Its layout includes:
3 spacious double bedrooms, each with an en-suite bathroom
Large open-plan living-dining room with direct access to the terrace
Modern kitchen integrated into the living space
Guest toilet, laundry room, and storage area
Spacious terraces ideal for outdoor dining and relaxation
Private pool measuring 10 × 4 m
Pergola with space for two cars
Beautiful Mediterranean-inspired garden
If more space is desired, it is possible to add a basement (ideal as a gym, cinema room, storage, or additional bedroom) with a simple modification to the permit at the town hall.
Key Features
Plot Area: 889 m²
Buildable Area: 177 m² (plus optional basement)
Orientation: West
Urban land (building lot)
Designated for single-family residential use
Easy access in a consolidated and quiet neighborhood
Connections for water, electricity, public lighting, and sidewalks
Why Choose Pinosol
Pinosol is a highly valued area for those seeking tranquility without being far from the more dynamic parts of Jávea. Its proximity to beaches, international schools, and all services makes it an ideal location for both a permanent residence and a high-quality vacation villa.
With the project and permit already approved, this plot offers a unique opportunity to start building immediately: the perfect foundation to create the villa you have always imagined on the Costa Blanca.
Property Features
CLOSE TO AMENITIESClose to International SchoolClose to the beachMountain ViewsWest Orientation
To provide the best experiences, we use technologies like cookies to store and/or access device information. Consenting to these technologies will allow us to process data such as browsing behavior or unique IDs on this site. Not consenting or withdrawing consent, may adversely affect certain features and functions.
Functional
Always active
The technical storage or access is strictly necessary for the legitimate purpose of enabling the use of a specific service explicitly requested by the subscriber or user, or for the sole purpose of carrying out the transmission of a communication over an electronic communications network.
Preferences
The technical storage or access is necessary for the legitimate purpose of storing preferences that are not requested by the subscriber or user.
Statistics
The technical storage or access that is used exclusively for statistical purposes.The technical storage or access that is used exclusively for anonymous statistical purposes. Without a subpoena, voluntary compliance on the part of your Internet Service Provider, or additional records from a third party, information stored or retrieved for this purpose alone cannot usually be used to identify you.
Marketing
The technical storage or access is required to create user profiles to send advertising, or to track the user on a website or across several websites for similar marketing purposes.