7 Bedroom Boutique Rural house in Parcent
Overview
Reference: C142
Location: Parcent
Type: Townhouse
Bedrooms: 7
Bathrooms: 6
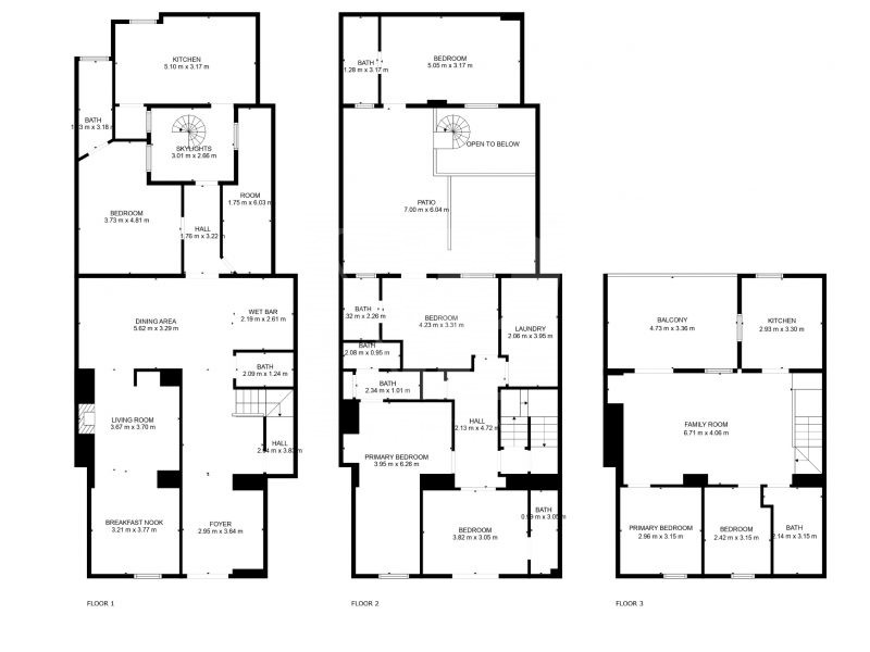
Build Size: 372m2
399,000 €
Location
Property Brochure
Description
This beautifully restored 17th-century townhouse in the sought-after village of Parcent combines authentic Spanish character with modern comfort. Currently operating as Casa Carrascal, a successful boutique guesthouse offering guided walking holidays, the property benefits from a strong reputation and loyal international clientele.
Set over three floors, the house features seven bedrooms and six bathrooms, generous living and dining areas, and a fully equipped commercial-style kitchen. Original stone walls, wooden beams, and rustic tiles create a warm, authentic atmosphere throughout.
A major highlight is the independent top-floor apartment with two bedrooms, kitchen, and living space—ideal for owner accommodation, guest use, or rental. Multiple terraces and courtyards provide inviting outdoor spaces for relaxation and al fresco dining.
Located in a prime area for walking and cycling in the Costa Blanca mountains, yet close to the coast and international airports, this property offers a rare turnkey opportunity to acquire a characterful home with an established and profitable lifestyle business already in place.

